At Foxley Design, our focus is bringing your vision to life while honoring the unique parameters of your site and existing structures. We begin by developing a concept that aligns with your ideas, then translate that concept into 3D renderings. Once the rough floor plan and elevations are in place, the 3D model helps you visualize the building before construction begins, leaving as little to the imagination as possible—a tool that’s invaluable for clarity and confidence.
Using advanced 3D rendering software, we guide clients through every step of the design process—from floor plan layouts to finishes, colors, window placement, and building envelope. This process not only ensures your vision is realized but also streamlines the creation of construction documents, saving time and reducing revisions later.
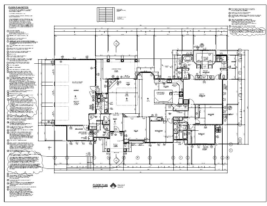
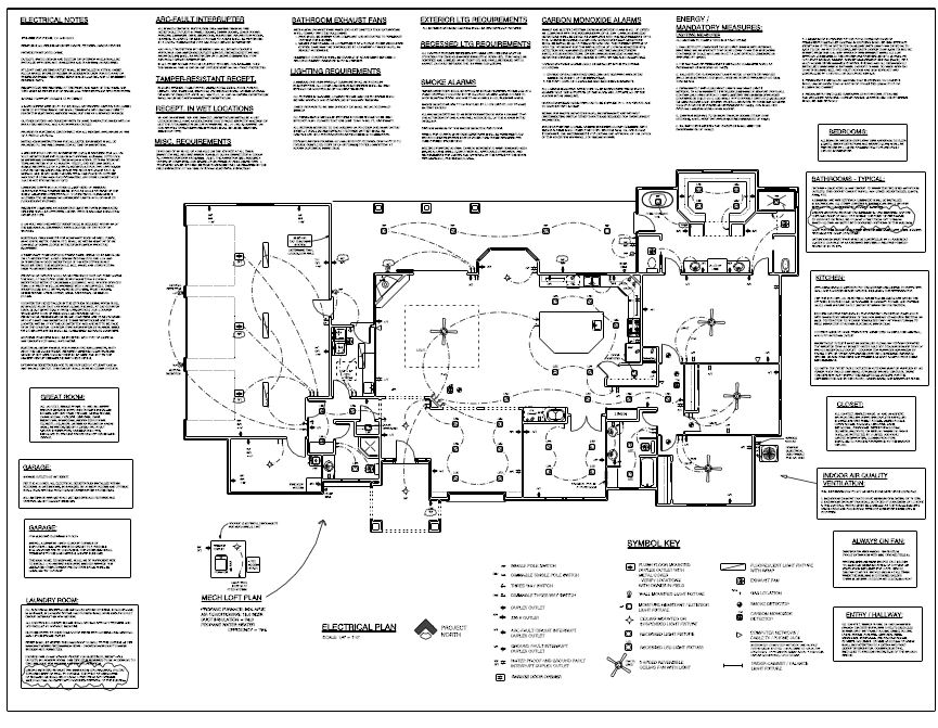
From the 3D model, we generate the full construction documents, the next step toward obtaining a building permit. These documents clearly communicate current building codes, structural information, and specifications so homeowners or contractors can accurately bid projects.
Collaboration is key in this phase. Foxley Design works closely with energy consultants, structural and civil engineers, fire protection specialists, and roof truss companies when necessary. Our goal is to ensure the project flows efficiently and smoothly, keeping your vision at the forefront while minimizing stress and delays.
Below are examples of the construction documents required to obtain a building permit.
Elevations




.
